
67 mq
120.000
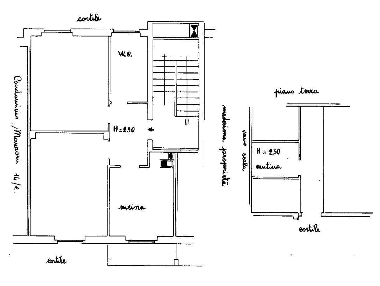
Nel centro di San Giuliano Milanese, proponiamo questo appartamento al primo piano, con ascensore installato da poco, posto all'interno del cortile di un edificio degli anni sessanta. L'immobile è così composto: ingresso, soggiorno, cucina abitabile con balcone, ripostiglio, camera matrimoniale e bagno con finestra. Le finiture sono quelle dell'epoca di costruzione, gli infissi sono in alluminio con doppio vetro, completi di zanzariere e inferriate, il riscaldamento è autonomo e abbiamo una doppia esposizione: da un lato sul cortile e dall'altro su accesso privato ai garage. Completano la proprietà una cantina e un box di 13 mq, entrambi posti al piano terra. La zona offre ogni tipo di servizio ed è ben collegata ai mezzi pubblici di trasporto che portano alla fermata metropolitana di San Donato Milanese. Contattatemi per avere ulteriori informazioni o per fissare una visita in loco. Classe G Ep 221,01.












